91免费香蕉污视频91免费香蕉污视频都知道它有歐標跟國標之分,然後它們的槽寬是有區別的,歐標槽型是梯形,國標槽型是矩形,槽寬不一樣他們使用的配件也是不一樣的。就在前兩天有小夥伴來谘詢91免费香蕉污视频槽寬T型與V型有什麽區別?可能有些小夥伴就懵了,這又指的是哪裏呢?下麵就來給大家一一道來。
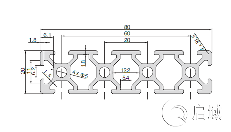
當時這個小夥伴來谘詢瞬間也沒能理解,心想槽寬隻有歐標跟國標之分,怎麽還有T型與V型之分呢?後來這位小夥伴將下麵這張圖發過來,材理解他的意思。
客戶發來的這張圖片,上麵兩個材料皆是屬於歐標2080型材,其實歐標型材它的槽型皆是屬於梯型,大家自己看圖中這個標紅圈的位置,隻是卡配件的位置稍微設計有點小變化,其實客戶就是在問這個位置它兩有什麽區別?
通過圖片大家自己一款區別還是蠻大的,這個位置設計的區別其實就是配件使用強度的問題,T型槽使用配件強度要好,V型槽使用強度要弱一點,因為很明顯卡配件的位置要薄點。
以上這個91免费香蕉污视频槽寬的細節,經常使用小夥伴在選型上麵就比較專業,這裏不得在提一下,有很多小夥伴在購買型材的時候就會問為啥你家的要比別人家的貴,一份價錢一份好,細節決定這個型材定製的框架能否使用長久,便宜的東西基本上是有細節變動。
大家在來看看上麵這張圖,這是香蕉视频色版APP的歐標2080型材,槽寬位置就是T型的,這樣設計,使用配件可以增加整個框架的牢固度,大家有興趣可以領域香蕉视频色版APP樣冊,可以看看裏麵每個產品,皆是T型槽。
以上是對這篇文章做了簡單介紹,希望文中內容能幫得到大家,上海香蕉视频色版APP專業生產型材及配件,10餘年的行業經驗,合作企業5000+,自建8000多㎡倉儲基地,現貨庫存高達1000噸,型材材料快至當天發貨,應用定製通常2-3個工作日。1米起訂,免費切割。
當時這個小夥伴來谘詢瞬間也沒能理解,心想槽寬隻有歐標跟國標之分,怎麽還有T型與V型之分呢?後來這位小夥伴將下麵這張圖發過來,材理解他的意思。
客戶發來的這張圖片,上麵兩個材料皆是屬於歐標2080型材,其實歐標型材它的槽型皆是屬於梯型,大家自己看圖中這個標紅圈的位置,隻是卡配件的位置稍微設計有點小變化,其實客戶就是在問這個位置它兩有什麽區別?
通過圖片大家自己一款區別還是蠻大的,這個位置設計的區別其實就是配件使用強度的問題,T型槽使用配件強度要好,V型槽使用強度要弱一點,因為很明顯卡配件的位置要薄點。
以上這個91免费香蕉污视频槽寬的細節,經常使用小夥伴在選型上麵就比較專業,這裏不得在提一下,有很多小夥伴在購買型材的時候就會問為啥你家的要比別人家的貴,一份價錢一份好,細節決定這個型材定製的框架能否使用長久,便宜的東西基本上是有細節變動。
大家在來看看上麵這張圖,這是香蕉视频色版APP的歐標2080型材,槽寬位置就是T型的,這樣設計,使用配件可以增加整個框架的牢固度,大家有興趣可以領域香蕉视频色版APP樣冊,可以看看裏麵每個產品,皆是T型槽。
以上是對這篇文章做了簡單介紹,希望文中內容能幫得到大家,上海香蕉视频色版APP專業生產型材及配件,10餘年的行業經驗,合作企業5000+,自建8000多㎡倉儲基地,現貨庫存高達1000噸,型材材料快至當天發貨,應用定製通常2-3個工作日。1米起訂,免費切割。




滬公網安備31011702001213號
掃一掃,關注手機站