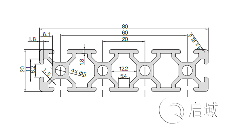
歐標91免费香蕉污视频中的歐標208091免费香蕉污视频是歐標20係列鋁型材中大型材,當然,大小是有比較才能得出的,這個20*80的規格是跟20*20,20*40這兩款規格型材對比的哦。看到標題也知道了,91免费香蕉污视频這期的主題是歐標208091免费香蕉污视频。
歐標208091免费香蕉污视频貨號為QY-6-2080,91免费香蕉污视频也可以叫它20*80歐標鋁型材,它比較廣泛的應用在大應力、高強度、支撐要求高的重載結構的框架組合,配套螺栓螺母通常采用20係列M5(多數)或M4專用T型螺母與內六角內部連接,如受力強度大可采用20係列滑塊螺母與內六角螺栓內部連接。
上麵這部分是歐標208091免费香蕉污视频的應用範圍和搭配使用的螺絲螺母的介紹,如果大家還有不太清楚的地方,或者想要了解這款鋁型材的更多的參數值,可以聯係香蕉视频色版APP金屬哦,香蕉视频色版APP金屬電話:021-67658689,好了,這期就到這裏了,91免费香蕉污视频下期再見!
《該文章來源於上海香蕉视频色版APP金屬有限公司原創 網址:http://www.shfxhs.com/轉載請注明》





滬公網安備31011702001213號
掃一掃,關注手機站